145 Roxwell Street, Ellen Grove QLD 4078 IN PLANNING
This information is estimated by the OpenLot research team. Let us know here to provide up-to-date information about this development.
| Total new homes | 13 |
| Area size | 1.31 hectares |
| Growth Region | Greater Brisbane Growth Areas |
| City council | Brisbane City Council |
| Developer | N/A |
| Distance to | Brisbane CBD - 19 km south-west Brisbane Airport - 31 km south-west |
Popular Estates near 145 Roxwell Street, Ellen Grove
Updates for 145 Roxwell Street, Ellen Grove
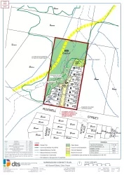
Location & Map for 145 Roxwell Street, Ellen Grove
Visit Display Homes near 145 Roxwell Street, Ellen Grove
Vacancy Rate in Ellen Grove QLD 4078
View full vacancy rate history in Ellen Grove QLD 4078 via SQM Research.
Schools near 145 Roxwell Street, Ellen Grove
Here are 6 schools near 145 Roxwell Street, Ellen Grove:
Prep-6 Government Primary School
Prep-6 Government Primary School
Prep-6 Government Primary School
7-12 Government Secondary School
Prep-12 Independent Combined School - School Head Campus
Prep-6 Government Primary School
Reviews & Comments on 145 Roxwell Street, Ellen Grove
FAQs about 145 Roxwell Street, Ellen Grove
- Grand Avenue State School - 1.4km east
- Forest Lake State School - 1.8km north-east
- Carole Park State School - 1.9km north-west
- Forest Lake State High School - 2.7km east
- St John's Anglican College - 2.7km east
- Camira State School - 2.9km west
Popular Estates near 145 Roxwell Street, Ellen Grove
Latest New Home Articles for You
19/Aug/2025 | OpenLot.com.au
🏡 Suburb Profile: Beveridge
Beveridge is within the Mitchell Shire, located 42 kilometres north of Me...
19/Aug/2025 | OpenLot.com.au
test2
19/Aug/2025 | OpenLot.com.au
tests
13/Jun/2025 | OpenLot.com.au
Display Homes at Playford Alive Estate: A Thriving Community at the Heart of Munno Para
Welcome to Playford Alive, a vibrant and dynamic masterplanned community ...
11/Jun/2025 | OpenLot.com.au
Display Homes at Ocean Hill Estate: A Thriving Community by the Coast
A short stroll from the white sands of Madora Beach and fringed by the co...
10/Jun/2025 | OpenLot.com.au
Display Homes at Bluestone Estate: An Established Community in the Mount Barker
Whether you’re a first home buyer, a growing family, or looking to downsi...
09/Jun/2025 | OpenLot.com.au
Queensland Leads, But NSW and VIC Fall Behind, in New Housing Buyer Demand Index
New data reveals that Australia’s new housing market remains resilient de...
06/Jun/2025 | OpenLot.com.au
Display Homes at Minters Fields Estate: A Scenic Hillside Community in Mount Barker
Nestled in the heart of Mount Barker, Minters Fields offers a truly remar...
03/Jun/2025 | OpenLot.com.au
🏡 Step Inside a Frenken Home at Smiths Lane
During a recent visit to the Smiths Lane display village, OpenLot.com.au ...