Oakdale by Bevnol Homes

DISPLAY HOME

The perfect versatile family home. With your ideas and Bevnol’s expertise, your dream lifestyle awaits!

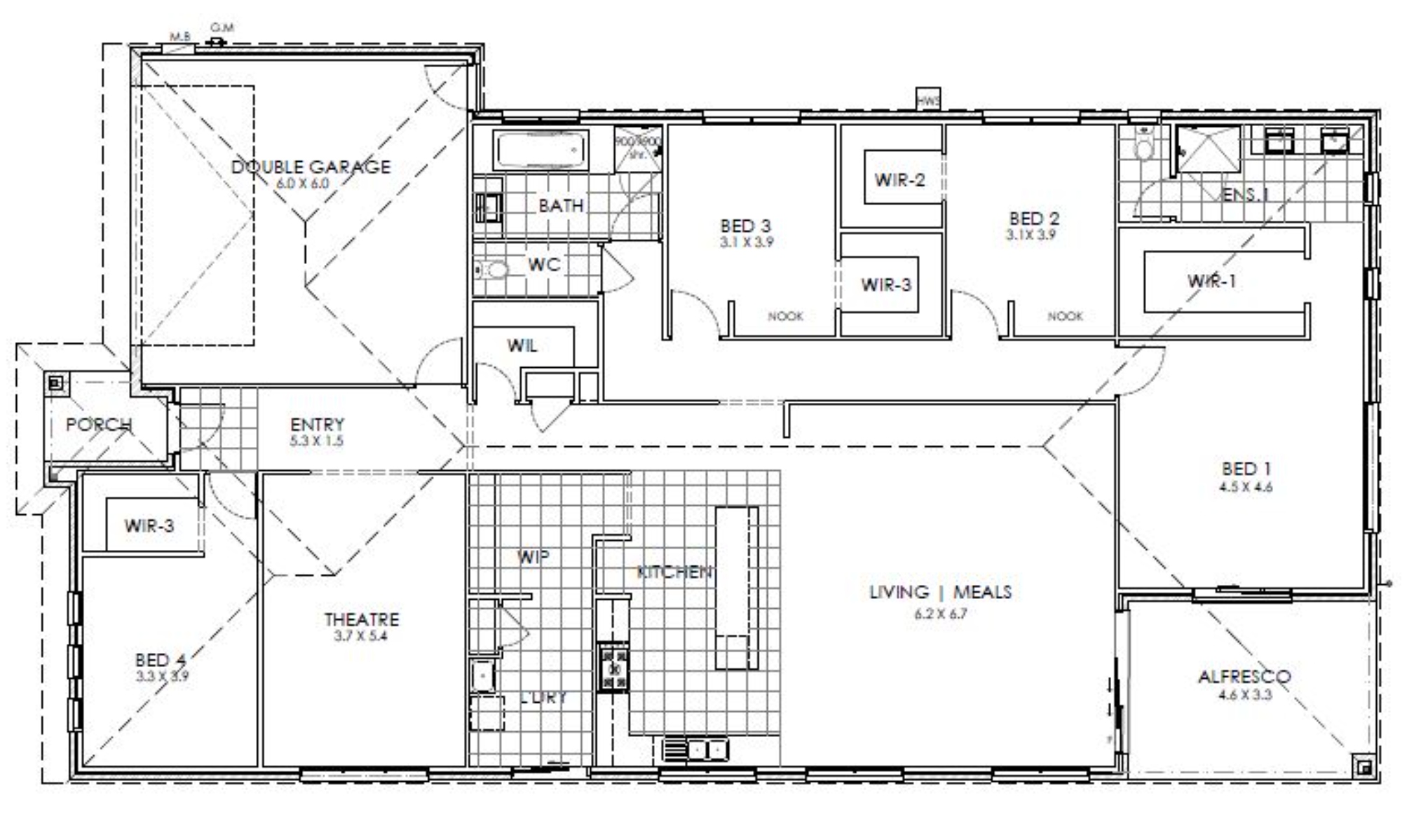
There are so many reasons to love this stunning, single storey home. Boasting 4 bedrooms and 2 bathrooms, there is room for every member of the family.

At the heart of this home is the centrally located kitchen, sharing the spotlight with the open plan living and meals area. Enjoy your spacious kitchen with a generous sized island bench that is just perfect for entertaining. The clever kitchen layout means your walk-through pantry leads you straight into the laundry for easy living.

Each of the 3 bedrooms boasts walk in robes and study nooks which can be cleverly re-designed to have ensuites to each of the bedrooms with built in robes in place of the study nooks.   While the large master bedroom offers a spacious walk-in robe and a gorgeous ensuite with separate toilet.

You’ll also enjoy:

Easy access to the alfresco are off both the master and living room
A generous lounge/theatre room big enough to host the whole family
The Oakdale has everything you need plus more and really must be seen to be appreciated. 


Floor-plan options for Oakdale

Oakdale 33
Bed 4
Bath 2
Living 2
Car 2
Home Design: Oakdale
Floor Area: 302.30mm2
House Width: 13.56m
House Length: 24.66m

Display Homes & 3D Tours for Oakdale by Bevnol Homes

Loading...

More House and Land Packages by Bevnol Homes (Home Builder)

Oakdale by Bevnol Homes