Orchid by Hudson Homes

DISPLAY HOME

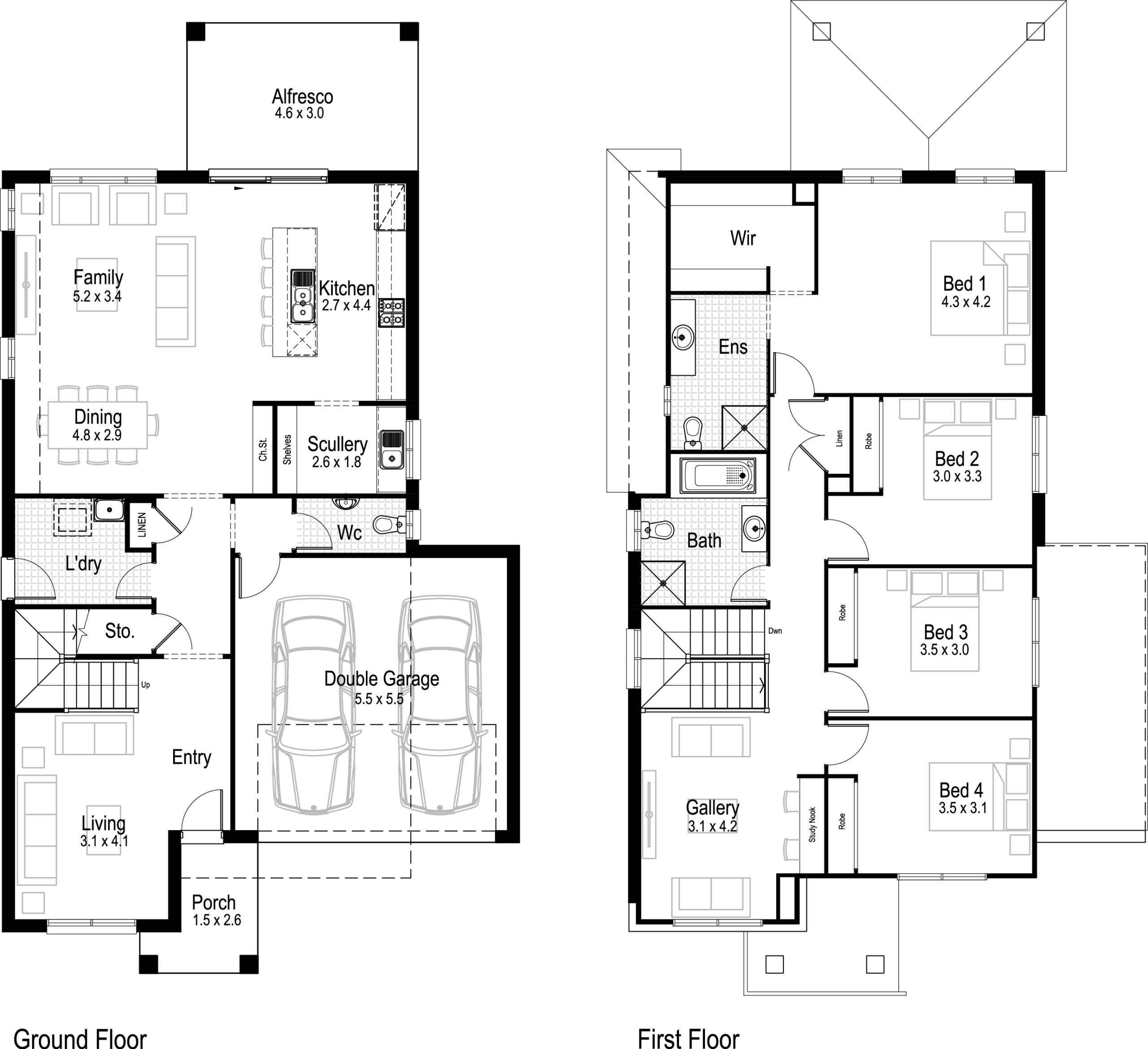
The Orchid is a double storey home designed with the urban land in mind. With its clean lines and harmonious design, this narrow home design incorporates multiple living areas and offers all the elements required for a comfortable family.

 


Floor-plan options for Orchid

Orchid 29
Bed 4
Bath 2.5
Living 2
Car 2
Home Design: Orchid
Floor Area: 268.18m2
House Width: 10.43m
House Length: 19.19m

Display Homes & 3D Tours for Orchid by Hudson Homes

Loading...
Orchid by Hudson Homes