Brookhaven by McCarthy Homes

DISPLAY HOME

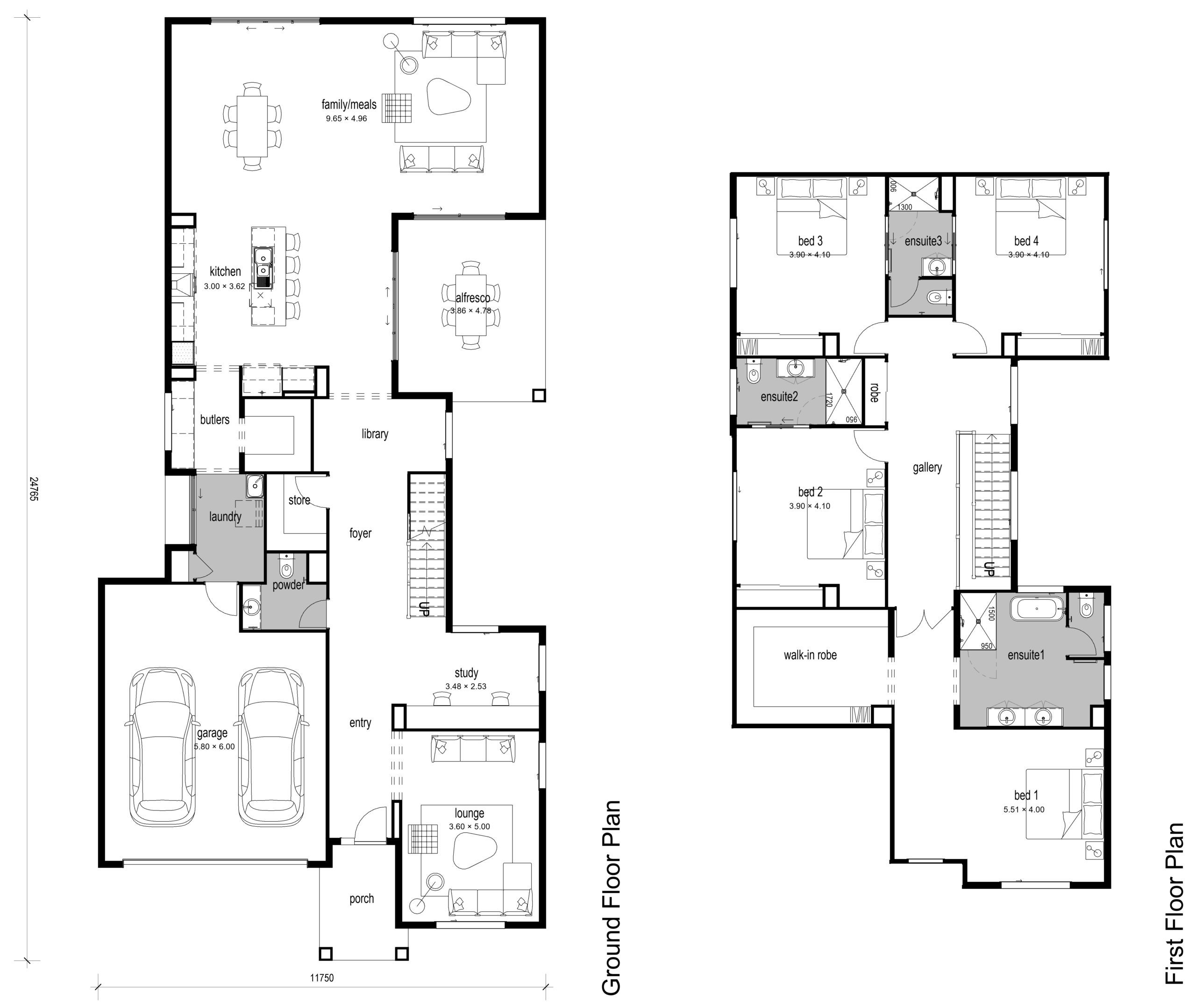
The Brookhaven is classic luxury and style, sure to encapsulate your imagination and desire like no other.  With a blend of style and functionality, the open plan living encompasses a mid-positioned void, leading to a stunning alfresco and open area.  A widened staircase leads to a first floor vista of space and open views, all assisted by generous glazing and natural light.

Features of this premium home include; Galley style kitchen with Butler’s pantry, spacious open plan dining and family room, guest bedroom with a separate ensuite, full sized master suite with separate robe-room, individual study area and convertible linen/wine cellar.

The Brookhaven showcases McCarthy Home’s commitment to creating the best quality craftsmanship of enduring luxury family homes tailored for individual families.

 


Floor-plan options for Brookhaven

Brookhaven 42
Bed 4
Bath 3.5
Living 2
Car 2
Home Design: Brookhaven
Floor Area: 385.44m2
House Width: 11.75m
House Length: 24.76m

Display Homes & 3D Tours for Brookhaven by McCarthy Homes

Loading...
Brookhaven by McCarthy Homes