Amira by Metricon Homes

PROMOTED DISPLAY HOME

Multiple floorplans to choose from, the Amira is the perfect way to create your family’s dream home.

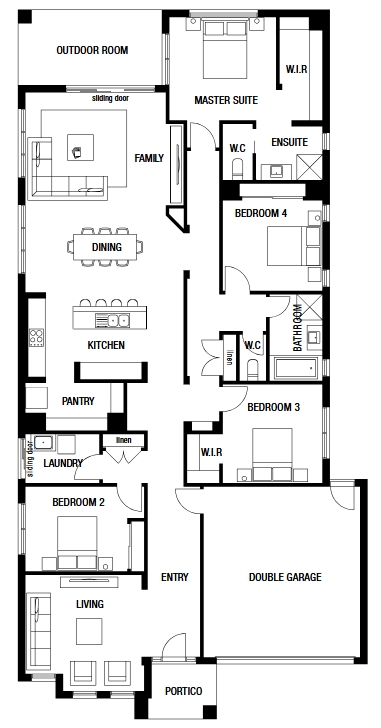
If you are looking for a home that offers something a little different then you’ll certainly find it in the four bedroom Amira. Designed to complement family living whilst providing maximum flexibility, this home features a private master suite located at the front of the home and the three other bedrooms zoned at the back. The centrally located kitchen, which has a large walk-in-pantry, looks out to the open plan living area. You will certainly have plenty of room to grow.


Floor-plan options for Amira

Amira 20
Bed 4
Bath 2
Living 2
Car 2
Home Design: Amira
Floor Area: 184.22m2
House Width: 11.15m
House Length: 18.71m
Amira 29
Bed 4
Bath 2
Living 2
Car 2
Home Design: Amira
Floor Area: 268.12m2
House Width: 12.23m
House Length: 24.83m
Amira 28
Bed 4
Bath 2
Living 2
Car 2
Home Design: Amira
Floor Area: 264.68m2
House Width: 12.35m
House Length: 24.35m
Amira 25S
Bed 4
Bath 2
Living 2
Car 2
Home Design: Amira
Floor Area: 181.66m2
House Width: 12.23m
House Length: 21.71m
Amira 25
Bed 4
Bath 2
Living 2
Car 2
Home Design: Amira
Floor Area: 182.08m2
House Width: 11.27m
House Length: 24.11m

Display Homes & 3D Tours for Amira by Metricon Homes

Loading...
Amira by Metricon Homes