Wildflower by Stroud Homes

DISPLAY HOME

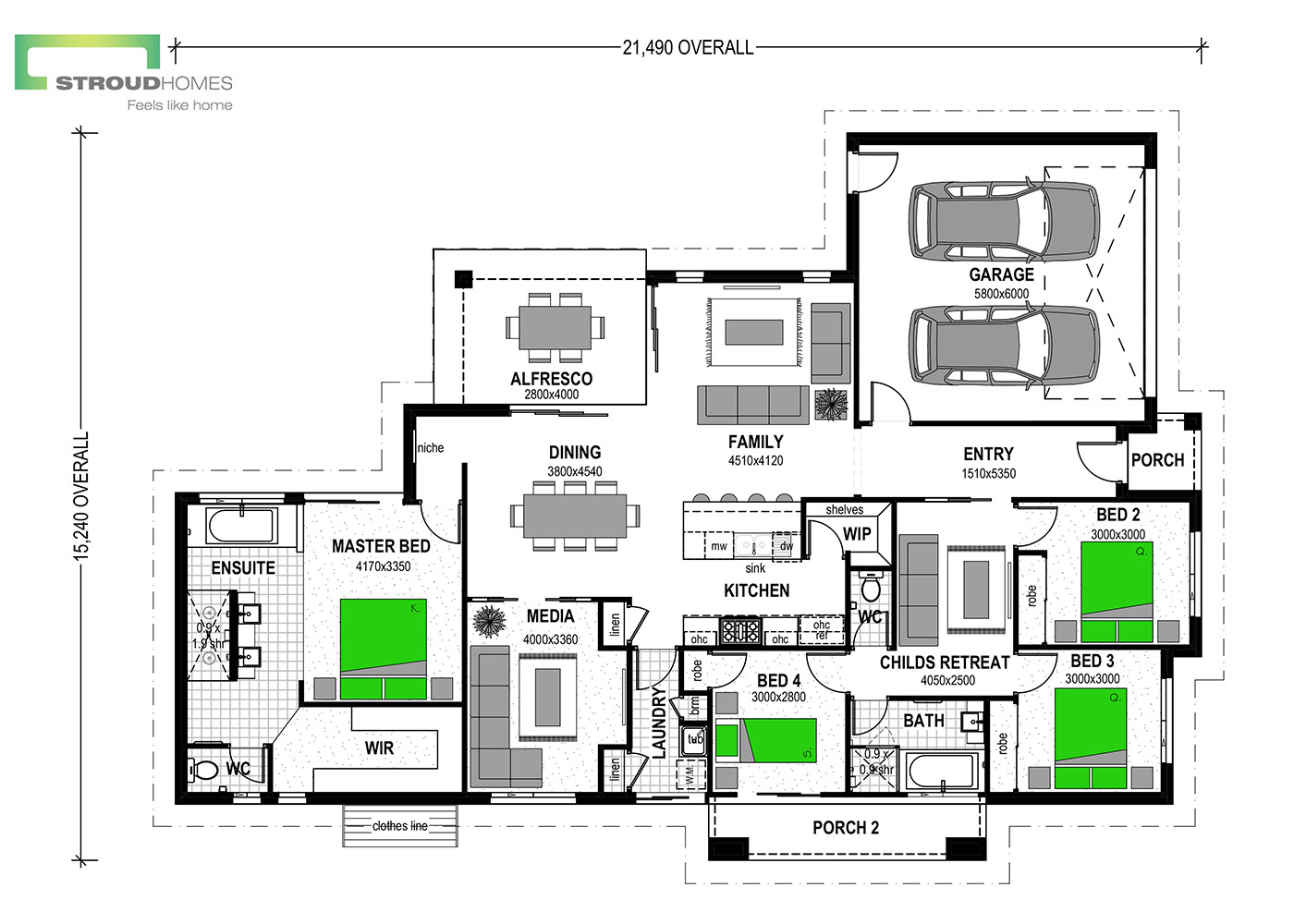
The Wildflower range of homes are designed for today’s living and are perfect for new housing estates. A walk-in pantry is included in the galley style kitchen which flows into the family areas.

You will love entertaining in the alfresco area under the main roof of the home. Each Wildflower design has a separate children’s retreat and a generously sized master bedroom with a walk in robe and ensuite.

The Wildflower has all the features to make it feel like home.

 


Floor-plan options for Wildflower

Wildflower 234
Bed 4
Bath 2
Living 1
Car 2
Home Design: Wildflower
Floor Area: 235.7m2
House Width: 15.2m
House Length: 21.5m

Display Homes & 3D Tours for Wildflower by Stroud Homes

Loading...

More House and Land Packages by Stroud Homes (Home Builder)

Wildflower by Stroud Homes