Lot 52: @ Dock One North Estate - Port Adelaide SA 5015
Architecturally designed by Enzo Caroscio, the homes at Dock One North evoke sustainability, wellness, and have been designed with minimal to no energy bills in mind.
The townhomes come equipped with 6.6kw solar and are battery-ready as standard, with elements of thermal massing and cross ventilation also considered in the design to provide 7-Star homes for residents.
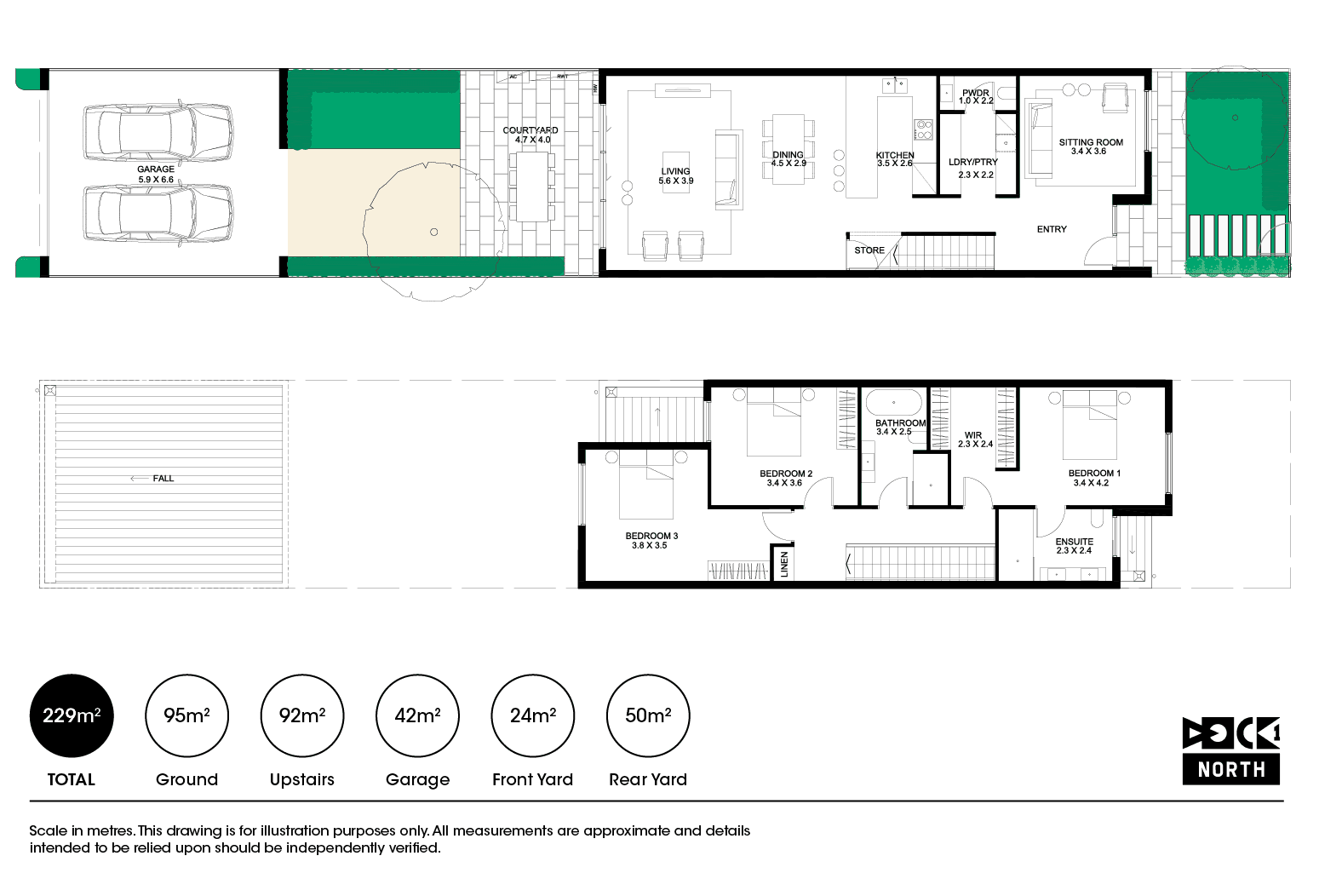
These homes offer multiple living spaces thoughtfully designed to embrace the waterfront setting, forging a unique connection between home and harbour.
Upstairs, you'll find three well-proportioned bedrooms, with the master bedroom featuring an ensuite & balcony.
Immerse yourself in a forward-thinking aesthetic, defined by clean lines and contemporary interior finishes crafted by Enoki. Choose from two distinct interior colour schemes - Norway or Denmark.
Port Adelaide is evolving into an area where creativity, commerce, entertainment, and education fuse into one energetic destination; transforming historical Port Adelaide into a thriving residential hub. Be part of the rise of a new residential locality by embracing Dock One North's unique approach to life.
3
2
2
Development Info of Dock One North Estate - Port Adelaide
This information is estimated by the OpenLot research team. Let us know here to provide up-to-date information about this development.
| Total new homes | 750 |
| Area size | N/A |
| Growth Region | Adelaide North Growth Areas |
| City council | City of Port Adelaide Enfield |
| Developer | Kite Projects |
| Other names | Dock One North |
| Distance to | Adelaide Airport - 12 km north Adelaide CBD - 12 km north-west |
Location & Map for Dock One North Estate - Port Adelaide
More Townhouses in Dock One North Estate - Port Adelaide
Vacancy Rate in Port Adelaide SA 5015
View full vacancy rate history in Port Adelaide SA 5015 via SQM Research.
Schools near Dock One North Estate - Port Adelaide
Here are 6 schools near Dock One North Estate - Port Adelaide:
U, R-6 Government Primary School
R-12 Independent Combined School
R-12 Catholic Combined School - School Head Campus
R-6 Government Primary School
U, 7-12 Government Secondary School
R-6 Government Primary School
Popular Estates near Dock One North Estate - Port Adelaide
Latest New Home Articles for You
19/Aug/2025 | OpenLot.com.au
🏡 Suburb Profile: Beveridge
Beveridge is within the Mitchell Shire, located 42 kilometres north of Me...
19/Aug/2025 | OpenLot.com.au
test2
19/Aug/2025 | OpenLot.com.au
tests
13/Jun/2025 | OpenLot.com.au
Display Homes at Playford Alive Estate: A Thriving Community at the Heart of Munno Para
Welcome to Playford Alive, a vibrant and dynamic masterplanned community ...
11/Jun/2025 | OpenLot.com.au
Display Homes at Ocean Hill Estate: A Thriving Community by the Coast
A short stroll from the white sands of Madora Beach and fringed by the co...
10/Jun/2025 | OpenLot.com.au
Display Homes at Bluestone Estate: An Established Community in the Mount Barker
Whether you’re a first home buyer, a growing family, or looking to downsi...
09/Jun/2025 | OpenLot.com.au
Queensland Leads, But NSW and VIC Fall Behind, in New Housing Buyer Demand Index
New data reveals that Australia’s new housing market remains resilient de...
06/Jun/2025 | OpenLot.com.au
Display Homes at Minters Fields Estate: A Scenic Hillside Community in Mount Barker
Nestled in the heart of Mount Barker, Minters Fields offers a truly remar...
03/Jun/2025 | OpenLot.com.au
🏡 Step Inside a Frenken Home at Smiths Lane
During a recent visit to the Smiths Lane display village, OpenLot.com.au ...