Euca Valley - Taree IN PLANNING
This information is estimated by the OpenLot research team. Let us know here to provide up-to-date information about this development.
| Total new homes | 525 |
| Area size | N/A |
| City council | MidCoast Council |
| Developer | Cameron Brae Group |
Popular Estates near Euca Valley - Taree
Updates for Euca Valley - Taree
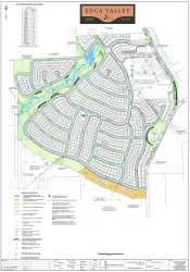
Location & Map for Euca Valley - Taree
Schools near Euca Valley - Taree
Here are 6 schools near Euca Valley - Taree:
K-12 Independent Combined School
7-12 Government Secondary School
K-6 Government Primary School
K-6 Catholic Primary School
K-6 Government Primary School
P-6 Government Primary School
Reviews & Comments on Euca Valley - Taree
FAQs about Euca Valley - Taree
View all estates from Cameron Brae Group
- MidCoast Christian College - 1.2km south-east
- Wingham High School - 3.3km north-west
- Wingham Brush Public School - 3.6km west
- St Joseph's Primary School - 3.8km west
- Taree West Public School - 4.1km south-east
- Manning Gardens Public School - 4.6km east
Popular Estates near Euca Valley - Taree
Latest New Home Articles for You
19/Aug/2025 | OpenLot.com.au
🏡 Suburb Profile: Beveridge
Beveridge is within the Mitchell Shire, located 42 kilometres north of Me...
19/Aug/2025 | OpenLot.com.au
test2
19/Aug/2025 | OpenLot.com.au
tests
13/Jun/2025 | OpenLot.com.au
Display Homes at Playford Alive Estate: A Thriving Community at the Heart of Munno Para
Welcome to Playford Alive, a vibrant and dynamic masterplanned community ...
11/Jun/2025 | OpenLot.com.au
Display Homes at Ocean Hill Estate: A Thriving Community by the Coast
A short stroll from the white sands of Madora Beach and fringed by the co...
10/Jun/2025 | OpenLot.com.au
Display Homes at Bluestone Estate: An Established Community in the Mount Barker
Whether you’re a first home buyer, a growing family, or looking to downsi...
09/Jun/2025 | OpenLot.com.au
Queensland Leads, But NSW and VIC Fall Behind, in New Housing Buyer Demand Index
New data reveals that Australia’s new housing market remains resilient de...
06/Jun/2025 | OpenLot.com.au
Display Homes at Minters Fields Estate: A Scenic Hillside Community in Mount Barker
Nestled in the heart of Mount Barker, Minters Fields offers a truly remar...
03/Jun/2025 | OpenLot.com.au
🏡 Step Inside a Frenken Home at Smiths Lane
During a recent visit to the Smiths Lane display village, OpenLot.com.au ...