Focal Point Estate - Cardiff
This information is estimated by the OpenLot research team. Let us know here to provide up-to-date information about this development.
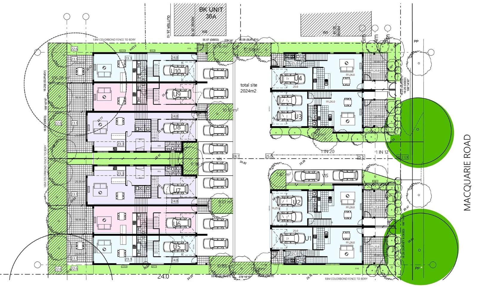
| Total new homes | 10 |
| Area size | 0.20 hectares |
| Growth Region | Greater Newcastle Growth Areas (The Hunter Region) |
| City council | Lake Macquarie City Council |
| Developer | Cerretti |
| Project marketer | Kapalua Advisory |
| Distance to | Newcastle CBD - 12 km west |
Townhomes:
Popular Estates near Focal Point Estate - Cardiff
Updates for Focal Point Estate - Cardiff
Location & Map for Focal Point Estate - Cardiff
Visit Display Homes near Focal Point Estate - Cardiff
Vacancy Rate in Cardiff NSW 2285
View full vacancy rate history in Cardiff NSW 2285 via SQM Research.
Schools near Focal Point Estate - Cardiff
Here are 6 schools near Focal Point Estate - Cardiff:
K-6 Government Primary School
K-6 Catholic Primary School
K-6 Government Primary School
P-6 Government Primary School
7-12 Government Secondary School
K-6 Government Primary School
Reviews & Comments on Focal Point Estate - Cardiff
Estate Brochure, Masterplan, Engineering Plan, Plan of Subdivision (POS), Design Guidelines
FAQs about Focal Point Estate - Cardiff
View all estates from Cerretti
View all estates marketed by Kapalua Advisory
- Cardiff Public School - 151m south
- St Kevin's Primary School - 816m east
- Cardiff North Public School - 1.1km north-east
- Cardiff South Public School - 1.2km south-east
- Cardiff High School - 1.4km south-east
- Glendale East Public School - 1.9km north
Popular Estates near Focal Point Estate - Cardiff
Latest New Home Articles for You
19/Aug/2025 | OpenLot.com.au
🏡 Suburb Profile: Beveridge
Beveridge is within the Mitchell Shire, located 42 kilometres north of Me...
19/Aug/2025 | OpenLot.com.au
test2
19/Aug/2025 | OpenLot.com.au
tests
13/Jun/2025 | OpenLot.com.au
Display Homes at Playford Alive Estate: A Thriving Community at the Heart of Munno Para
Welcome to Playford Alive, a vibrant and dynamic masterplanned community ...
11/Jun/2025 | OpenLot.com.au
Display Homes at Ocean Hill Estate: A Thriving Community by the Coast
A short stroll from the white sands of Madora Beach and fringed by the co...
10/Jun/2025 | OpenLot.com.au
Display Homes at Bluestone Estate: An Established Community in the Mount Barker
Whether you’re a first home buyer, a growing family, or looking to downsi...
09/Jun/2025 | OpenLot.com.au
Queensland Leads, But NSW and VIC Fall Behind, in New Housing Buyer Demand Index
New data reveals that Australia’s new housing market remains resilient de...
06/Jun/2025 | OpenLot.com.au
Display Homes at Minters Fields Estate: A Scenic Hillside Community in Mount Barker
Nestled in the heart of Mount Barker, Minters Fields offers a truly remar...
03/Jun/2025 | OpenLot.com.au
🏡 Step Inside a Frenken Home at Smiths Lane
During a recent visit to the Smiths Lane display village, OpenLot.com.au ...