Lot 51: The Wattle @ Greenlands Meadows Estate - West Pinjarra WA 6208
This home, built by the renowned Shelford Quality Homes, promises a harmonious blend of rural style, space, and functionality.
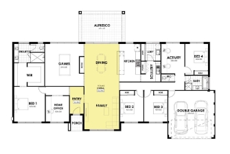
The Wattle is the ideal home design for these wide rural lots. This expansive home design has ample storage and space for the whole family to enjoy, without compromise!
* Spacious four bedroom, two bathroom home with separate study and activity rooms
* Open plan family, dining and kitchen space with large separate games room
* Master suite with massive walk-in robe and ensuite bathroom
* Double garage
* Central alfresco perfect for entertaining
* 25 year Structural Guarantee
Contact Clay Holt on 0437 029 826 to start your new home journey!
4
2
2
Development Info of Greenlands Meadows Estate - West Pinjarra
This information is estimated by the OpenLot research team. Let us know here to provide up-to-date information about this development.
| Total new homes | 35 |
| Area size | 44.70 hectares |
| Growth Region | Mandurah (Peel Region) |
| City council | Shire of Murray |
| Developer | Corrib Developments |
| Project marketer | Rural & Metro Realty |
| Creative agency | Think Creative Studios |
Location & Map for Greenlands Meadows Estate - West Pinjarra
More House and Land Packages in Greenlands Meadows Estate - West Pinjarra
More House and Land Packages by Shelford Homes (Home Builder)
Vacancy Rate in West Pinjarra WA 6208
View full vacancy rate history in West Pinjarra WA 6208 via SQM Research.
Schools near Greenlands Meadows Estate - West Pinjarra
Here are 6 schools near Greenlands Meadows Estate - West Pinjarra:
PP-12 Independent Combined School - School Head Campus
K-6 Government Primary School
7-12 Government Secondary School
PP-6 Catholic Primary School
K-6 Government Primary School
7-12 Government Secondary School
Popular Estates near Greenlands Meadows Estate - West Pinjarra
Latest New Home Articles for You
19/Aug/2025 | OpenLot.com.au
🏡 Suburb Profile: Beveridge
Beveridge is within the Mitchell Shire, located 42 kilometres north of Me...
19/Aug/2025 | OpenLot.com.au
test2
19/Aug/2025 | OpenLot.com.au
tests
13/Jun/2025 | OpenLot.com.au
Display Homes at Playford Alive Estate: A Thriving Community at the Heart of Munno Para
Welcome to Playford Alive, a vibrant and dynamic masterplanned community ...
11/Jun/2025 | OpenLot.com.au
Display Homes at Ocean Hill Estate: A Thriving Community by the Coast
A short stroll from the white sands of Madora Beach and fringed by the co...
10/Jun/2025 | OpenLot.com.au
Display Homes at Bluestone Estate: An Established Community in the Mount Barker
Whether you’re a first home buyer, a growing family, or looking to downsi...
09/Jun/2025 | OpenLot.com.au
Queensland Leads, But NSW and VIC Fall Behind, in New Housing Buyer Demand Index
New data reveals that Australia’s new housing market remains resilient de...
06/Jun/2025 | OpenLot.com.au
Display Homes at Minters Fields Estate: A Scenic Hillside Community in Mount Barker
Nestled in the heart of Mount Barker, Minters Fields offers a truly remar...
03/Jun/2025 | OpenLot.com.au
🏡 Step Inside a Frenken Home at Smiths Lane
During a recent visit to the Smiths Lane display village, OpenLot.com.au ...