Lakeside Estate - Orange
Vacant land
House and land
Miriam Drive, Orange NSW 2800
The information provided in relation to this development has been obtained from publicly available sources and has not been verified or in any way endorsed by the developer. OpenLot.com.au has not been authorised by the developer to market this land estate on behalf of the developer or the vendors or any other third party.
If you're the developer or authorised agent, contact us now to activate your project.
This information is estimated by the OpenLot research team. Let us know here to provide up-to-date information about this development.
| Total new homes | N/A |
| Area size | N/A |
| City council | Orange City Council |
| Developer | N/A |
| Project marketer | Emerald Property Group |
Land for Sale, House and Land Packages:
Popular Estates near Lakeside Estate - Orange
Updates for Lakeside Estate - Orange
Location & Map for Lakeside Estate - Orange
Schools near Lakeside Estate - Orange
Here are 6 schools near Lakeside Estate - Orange:
K-6 Government Primary School
3-12 Independent Combined School
K-6 Government Primary School
K-6 Government Primary School
K-6 Catholic Primary School
K-6 Catholic Primary School
Reviews & Comments on Lakeside Estate - Orange
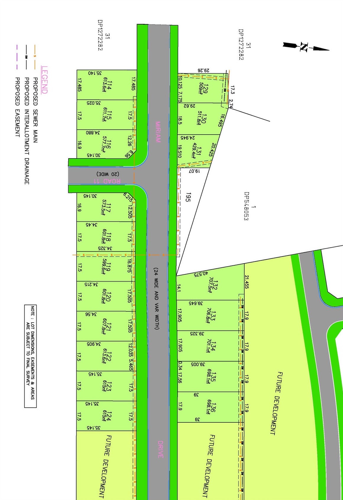
Estate Brochure, Masterplan, Engineering Plan, Plan of Subdivision (POS), Design Guidelines
FAQs about Lakeside Estate - Orange
View all estates marketed by Emerald Property Group
- Bletchington Public School - 2.2km south-west
- OneSchool Global NSW - Orange - 2.8km south-west
- Bowen Public School - 2.9km south
- Orange East Public School - 3.1km south
- St Mary's Catholic Primary School Orange - 3.3km south
- Catherine McAuley Catholic Primary School Orange - 3.7km south-west
Popular Estates near Lakeside Estate - Orange
Latest New Home Articles for You
19/Aug/2025 | OpenLot.com.au
🏡 Suburb Profile: Beveridge
Beveridge is within the Mitchell Shire, located 42 kilometres north of Me...
19/Aug/2025 | OpenLot.com.au
test2
19/Aug/2025 | OpenLot.com.au
tests
13/Jun/2025 | OpenLot.com.au
Display Homes at Playford Alive Estate: A Thriving Community at the Heart of Munno Para
Welcome to Playford Alive, a vibrant and dynamic masterplanned community ...
11/Jun/2025 | OpenLot.com.au
Display Homes at Ocean Hill Estate: A Thriving Community by the Coast
A short stroll from the white sands of Madora Beach and fringed by the co...
10/Jun/2025 | OpenLot.com.au
Display Homes at Bluestone Estate: An Established Community in the Mount Barker
Whether you’re a first home buyer, a growing family, or looking to downsi...
09/Jun/2025 | OpenLot.com.au
Queensland Leads, But NSW and VIC Fall Behind, in New Housing Buyer Demand Index
New data reveals that Australia’s new housing market remains resilient de...
06/Jun/2025 | OpenLot.com.au
Display Homes at Minters Fields Estate: A Scenic Hillside Community in Mount Barker
Nestled in the heart of Mount Barker, Minters Fields offers a truly remar...
03/Jun/2025 | OpenLot.com.au
🏡 Step Inside a Frenken Home at Smiths Lane
During a recent visit to the Smiths Lane display village, OpenLot.com.au ...