Renwick Estate - Renwick SOLD OUT
This information is estimated by the OpenLot research team. Let us know here to provide up-to-date information about this development.
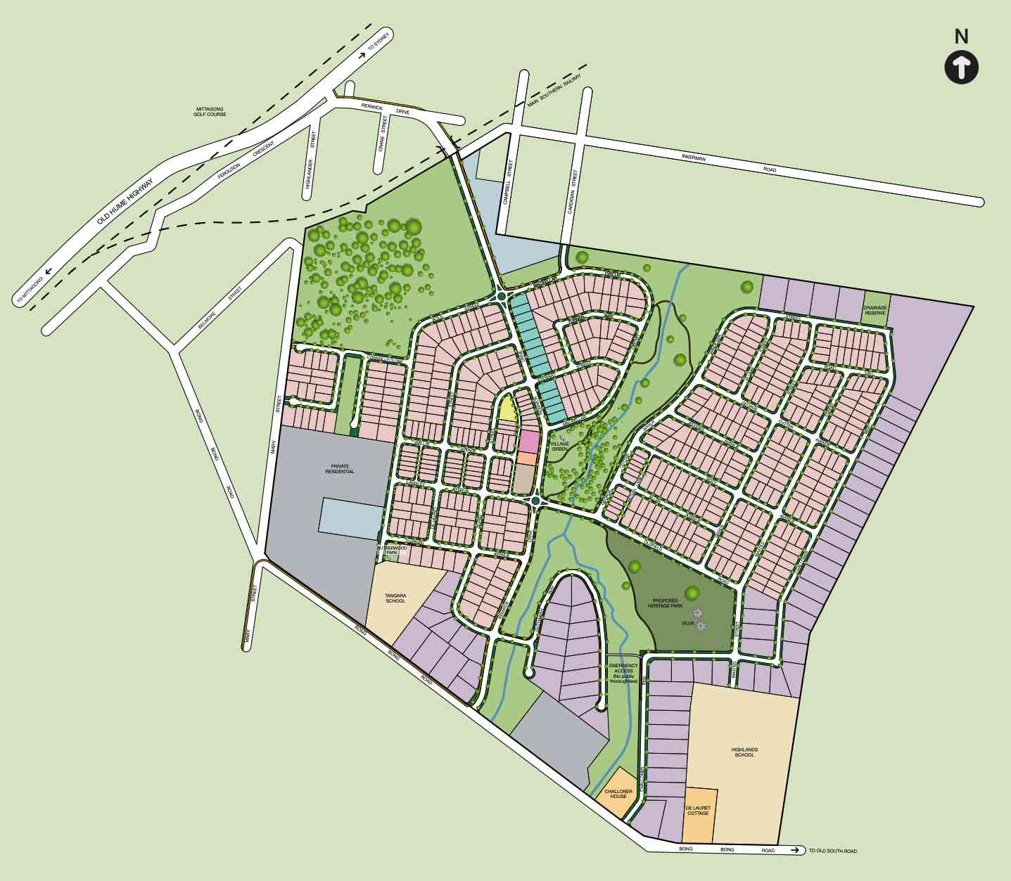
| Total new homes | 600 |
| Area size | 117.00 hectares |
| Growth Region | Wollongong (Illawarra-Shoalhaven Region) |
| City council | Wingecarribee Shire Council |
| Developer | Landcom |
| Distance to | Sydney CBD - 92 km south-west |
Land for Sale, House and Land Packages:
Popular Estates near Renwick Estate - Renwick
Updates for Renwick Estate - Renwick
Location & Map for Renwick Estate - Renwick
Vacancy Rate in Renwick NSW 2575
View full vacancy rate history in Renwick NSW 2575 via SQM Research.
Schools near Renwick Estate - Renwick
Here are 6 schools near Renwick Estate - Renwick:
U Government Special School
U Government Special School
7-12 Independent Secondary School
K-6 Catholic Primary School
K-6 Government Primary School
K-6 Independent Primary School
Reviews & Comments on Renwick Estate - Renwick
FAQs about Renwick Estate - Renwick
View all estates from Landcom
- Highlands School - 366m south-east
- Tangara School - 448m west
- Frensham School - 2.1km west
- St Michael's Catholic Primary School - 2.3km west
- Mittagong Public School - 2.8km west
- Frensham Junior School - 4.2km west
Popular Estates near Renwick Estate - Renwick
Latest New Home Articles for You
19/Aug/2025 | OpenLot.com.au
🏡 Suburb Profile: Beveridge
Beveridge is within the Mitchell Shire, located 42 kilometres north of Me...
19/Aug/2025 | OpenLot.com.au
test2
19/Aug/2025 | OpenLot.com.au
tests
13/Jun/2025 | OpenLot.com.au
Display Homes at Playford Alive Estate: A Thriving Community at the Heart of Munno Para
Welcome to Playford Alive, a vibrant and dynamic masterplanned community ...
11/Jun/2025 | OpenLot.com.au
Display Homes at Ocean Hill Estate: A Thriving Community by the Coast
A short stroll from the white sands of Madora Beach and fringed by the co...
10/Jun/2025 | OpenLot.com.au
Display Homes at Bluestone Estate: An Established Community in the Mount Barker
Whether you’re a first home buyer, a growing family, or looking to downsi...
09/Jun/2025 | OpenLot.com.au
Queensland Leads, But NSW and VIC Fall Behind, in New Housing Buyer Demand Index
New data reveals that Australia’s new housing market remains resilient de...
06/Jun/2025 | OpenLot.com.au
Display Homes at Minters Fields Estate: A Scenic Hillside Community in Mount Barker
Nestled in the heart of Mount Barker, Minters Fields offers a truly remar...
03/Jun/2025 | OpenLot.com.au
🏡 Step Inside a Frenken Home at Smiths Lane
During a recent visit to the Smiths Lane display village, OpenLot.com.au ...