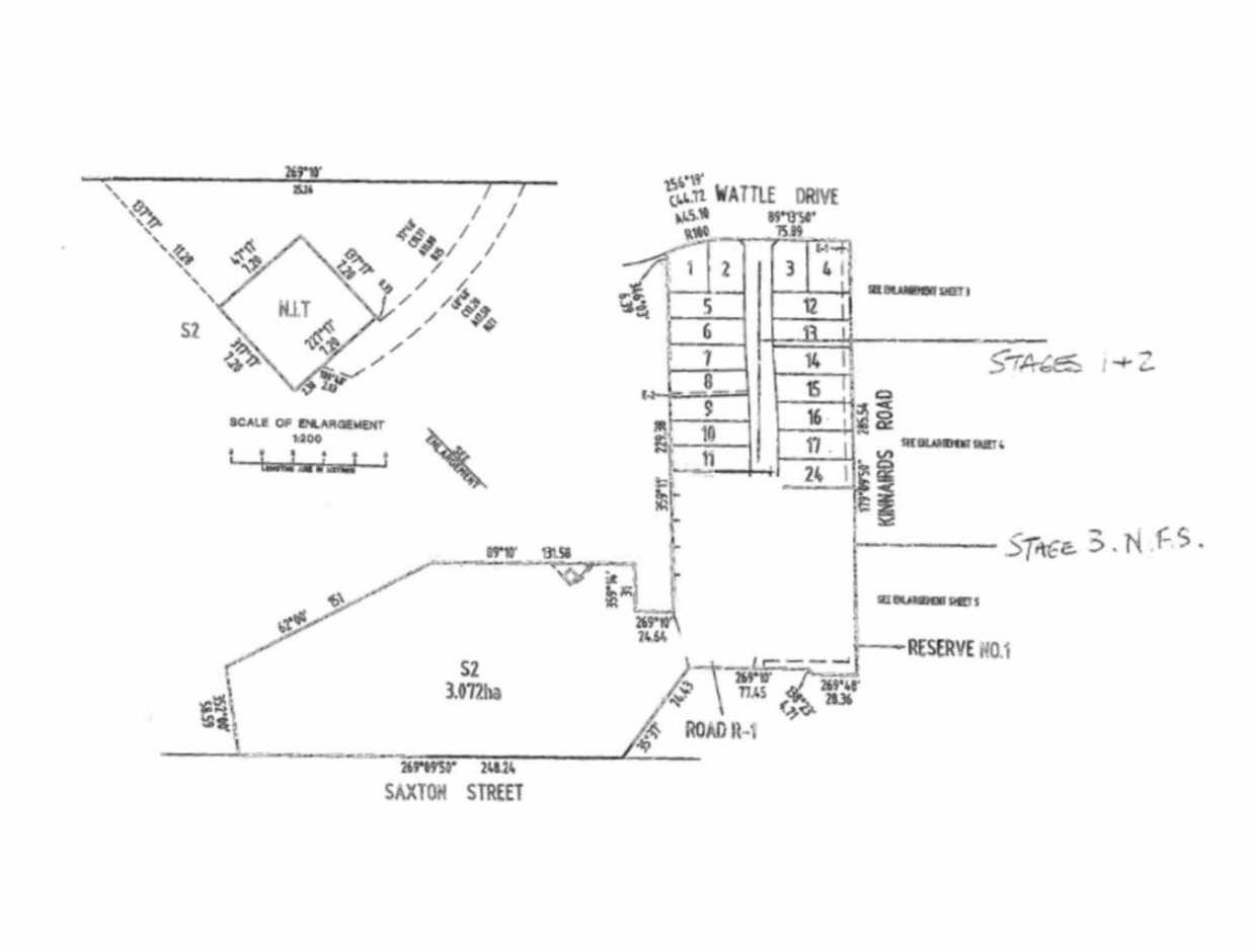
Settlers Run Estate - Numurkah
[limited offer] STAGE 1 & 2 SELLING NOW!
- Here’s a great opportunity to purchase a prime residential block of land in the popular Lakeside precinct.
- Walking distance to shops, schools, sporting facilities and the creek or Kinnairds walking tracks.
This information is estimated by the OpenLot research team. Let us know here to provide up-to-date information about this development.
| Total new homes | 63 |
| Area size | 6.20 hectares |
| City council | Moira Shire Council |
| Developer | N/A |
| Project marketer | Gagliardi Scott Real Estate |
Land for Sale, House and Land Packages:
Popular Estates near Settlers Run Estate - Numurkah
Updates for Settlers Run Estate - Numurkah
Location & Map for Settlers Run Estate - Numurkah
Land Price Trend in Numurkah VIC 3636
- In Oct - Dec 24, the median price for vacant land in Numurkah VIC 3636 was $150,000. *
- From Oct - Dec 17 to Oct - Dec 24, the median price for vacant land in Numurkah VIC 3636 has increased 20.97%. *
- From 2008 to 2024, the median price for vacant land in Numurkah VIC 3636 has increased 121.52%. *
Vacancy Rate in Numurkah VIC 3636
View full vacancy rate history in Numurkah VIC 3636 via SQM Research.
Schools near Settlers Run Estate - Numurkah
Here are 6 schools near Settlers Run Estate - Numurkah:
Prep-6 Government Primary School
7-12 Government Secondary School
Prep-6 Catholic Primary School
Prep-6 Government Primary School
Prep-6 Government Primary School
Reviews & Comments on Settlers Run Estate - Numurkah
Estate Brochure, Masterplan, Engineering Plan, Plan of Subdivision (POS), Design Guidelines
FAQs about Settlers Run Estate - Numurkah
View all estates marketed by Gagliardi Scott Real Estate
- Numurkah Primary School - 1.2km west
- Numurkah Secondary College - 1.3km north-west
- St Joseph's School - 1.3km west
- Wunghnu Primary School - 7.5km south
- Katunga Primary School - 9.8km north
Popular Estates near Settlers Run Estate - Numurkah
Latest New Home Articles for You
19/Aug/2025 | OpenLot.com.au
🏡 Suburb Profile: Beveridge
Beveridge is within the Mitchell Shire, located 42 kilometres north of Me...
19/Aug/2025 | OpenLot.com.au
test2
19/Aug/2025 | OpenLot.com.au
tests
13/Jun/2025 | OpenLot.com.au
Display Homes at Playford Alive Estate: A Thriving Community at the Heart of Munno Para
Welcome to Playford Alive, a vibrant and dynamic masterplanned community ...
11/Jun/2025 | OpenLot.com.au
Display Homes at Ocean Hill Estate: A Thriving Community by the Coast
A short stroll from the white sands of Madora Beach and fringed by the co...
10/Jun/2025 | OpenLot.com.au
Display Homes at Bluestone Estate: An Established Community in the Mount Barker
Whether you’re a first home buyer, a growing family, or looking to downsi...
09/Jun/2025 | OpenLot.com.au
Queensland Leads, But NSW and VIC Fall Behind, in New Housing Buyer Demand Index
New data reveals that Australia’s new housing market remains resilient de...
06/Jun/2025 | OpenLot.com.au
Display Homes at Minters Fields Estate: A Scenic Hillside Community in Mount Barker
Nestled in the heart of Mount Barker, Minters Fields offers a truly remar...
03/Jun/2025 | OpenLot.com.au
🏡 Step Inside a Frenken Home at Smiths Lane
During a recent visit to the Smiths Lane display village, OpenLot.com.au ...