Go Full Electric – Over $50K in Free Upgrades*

Go Full Electric with Allam!
When you buy this Move-In Ready Allam home, we’ll set you up for a smarter, greener lifestyle with an electric car, EV charger, solar panels, and a 10kWh solar battery – all valued at over $50,000! Limited time. T&C’s apply.

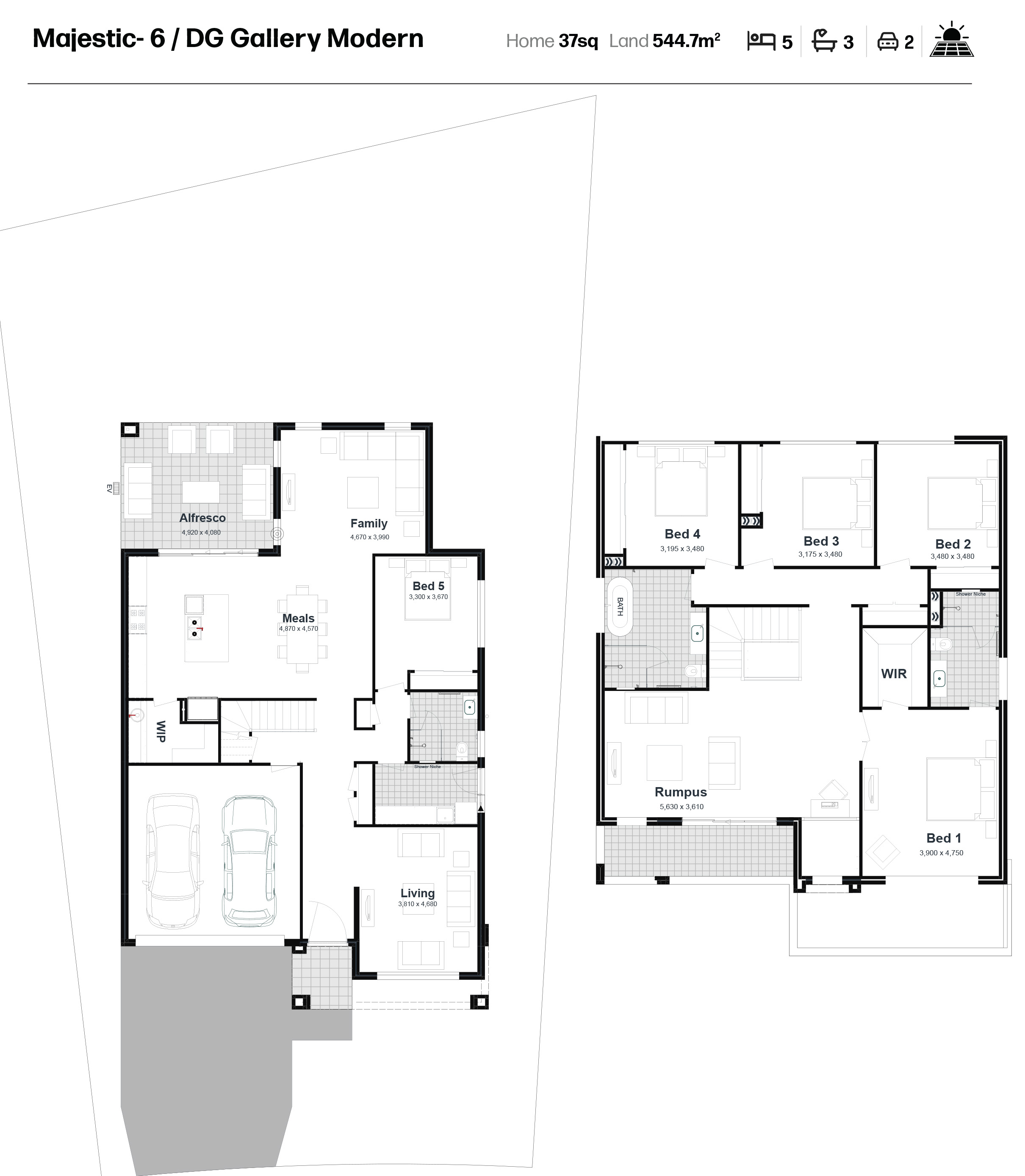
Welcome Home to the Majestic, an outstanding 5-bedroom home with an abundance of inclusions and offering flexible lifestyle options. A popular feature is the ground-floor bedroom and adjoining bathroom, ideal for guests, independent children, and grandparents. There are three distinctive living areas, including the spacious kitchen, dining family area with an adjoining covered alfresco terrace, upstairs rumpus and a formal living where you can entertain family and guests. The master bedroom has walk-in robes and an ensuite. All bedrooms are oversized with built-in robes and access to a very large and functional family bathroom.

Immersed in functionality and style, this residence is filled with inclusions inside and out. From modern appliances to well-manicured landscaping, every detail has been considered to elevate the living experience of this remarkable home.

• Ducted reverse cycle air conditioning
• Stone kitchen benchtops
• Glass splashback
• Window Furnishings throughout
• Alarm system with ‘Touchnav’ LED code pad and 2 remotes (also, connected to garage door auto opener)
• Auto garage door (one door only)
• Half height tiling to bathroom & ensuite and powder rooms that include showers
• Free-standing bath tub
• Solar

Disclaimer: Plans, drawings, and designs on this website are for marketing and illustrative purposes only. Dimensions are approximate, subject to survey and final subdivision plans (STCA). Plans are not to scale. Images, including artist impressions, may depict items not included in the sale. Purchasers should rely on their own enquiries and the Contract for Sale. Allam Homes Pty Limited may alter designs, specifications, dimensions, inclusions, and prices without notice. For full terms, visit www.allam.com.au.
Lot 313 Kilcarra Street Sold
Bed  5 Bath  3 Car  2
Land Size: 544.70m²
Price: $1,216,000

Floor-plan for Lot 313:


Development Info of Sophia Waters Estate - Chisholm

Total new homes 900
Area size N/A
Growth Region Greater Newcastle Growth Areas (The Hunter Region)
City council Maitland City Council
Developer Allam Property Group
Creative agency Nimbl
Distance to Newcastle CBD - 22 km north-west

Location & Map for Sophia Waters Estate - Chisholm

Loading...

Visit Display Homes near Sophia Waters Estate - Chisholm


More House and Land Packages in Sophia Waters Estate - Chisholm

Bed  5 Bath  3 Car  2
Land Size: 529.77m²
Impressive Family Home
Welcome Home to the grand Palazzo! This five-bedroom home is situated in the picturesque Sophia Waters estate and caters to growing and extended family in comfort and style. Stand out features include the dedicated guest bedroom with W.I.R and ensuite, three living areas, open plan kitchen and family area, Chef's kitchen with butler's pantry, ample storage and generously sized bedrooms. The master bedroom is a true standout with large ensuite and W.I.R.

Property Highlights include;
• Ducted reverse cycle air conditioning
• Flyscreens to all windows and sliding doors, block out blinds throughout and light filtering blinds to front elevation
• Quality flooring throughout
• Kitchen with 40mm stone bench tops with waterfall ends and stainless steel appliances, microwave included, soft-close drawers and glass splashback
• Alarm system with ‘Touchnav’ LED code pad and two remotes, remote garage door, and solar system
• Concrete driveway, landscaping, and fencing.

Disclaimer: Plans, drawings, and designs on this website are for marketing and illustrative purposes only. Dimensions are approximate, subject to survey and final subdivision plans (STCA). Plans are not to scale. Images, including artist impressions, may depict items not included in the sale. Purchasers should rely on their own enquiries and the Contract for Sale. Allam Homes Pty Limited may alter designs, specifications, dimensions, inclusions, and prices without notice. For full terms, visit www.allam.com.au.
Price: $1,229,000
Bed  5 Bath  3 Car  3
Land Size: 626.70m²
Perfectly Designed for Families
Welcome home to the stunning Mayfair. You’ll be impressed with the space and layout that allows for cohesive family living whilst giving everyone their own room.

Featuring five bedrooms, including a ground-floor guest bedroom or study, and a separate bathroom, this home is ideally suited for multi-generational living. The three spacious living areas provide flexibility for relaxation, entertainment, and family connection.

At the heart of the home is a chef’s kitchen, complete with a butler’s pantry, that flows seamlessly into the open-plan dining and family area, study nook, and out to the alfresco, ideal for year-round entertaining.

Upstairs, the master suite impresses with a large walk-in robe and private ensuite. A separate powder room adds convenience for family and guests alike.

With a triple lock-up garage and a thoughtfully designed floorplan, the Mayfair combines space, style, and practicality — the perfect place for your family to grow and thrive.

Property Highlights include;
• Ducted reverse cycle air conditioning
• Flyscreens to all windows and sliding doors, block out blinds throughout and light filtering blinds to front elevation
• Quality flooring throughout
• Kitchen with 40mm stone bench tops with waterfall ends and stainless steel appliances, microwave included, soft-close drawers and glass splashback
• Alarm system with ‘Touchnav’ LED code pad and two remotes, remote garage door, and solar system
• Concrete driveway, landscaping, and fencing.

Disclaimer: Plans, drawings, and designs on this website are for marketing and illustrative purposes only. Dimensions are approximate, subject to survey and final subdivision plans (STCA). Plans are not to scale. Images, including artist impressions, may depict items not included in the sale. Purchasers should rely on their own enquiries and the Contract for Sale. Allam Homes Pty Limited may alter designs, specifications, dimensions, inclusions, and prices without notice. For full terms, visit www.allam.com.au.
Price: $1,399,000
Bed  5 Bath  3 Car  2
Land Size: 783.08m²
Complete and Ready to Move into – Inspect Saturday & Sunday 12pm - 12:30pm
This splendid two-level corner block home in the desirable Sophia Waters, Chisholm, is thoughtfully designed for a growing family. Featuring five bedrooms, it offers abundant space and comfort, and beautiful views of the bushland corridor.

The home provides multiple living areas, including a covered alfresco area that extends the living space outdoors—perfect for entertaining friends or enjoying the fresh air. The large backyard is ideal for young families and pets.

At the heart of the home, the generously sized kitchen offers ample storage and preparation space. The master bedroom features a walk-in robe and an ensuite, creating a luxurious retreat. All bedrooms include built-in robes, and a well-appointed family bathroom enhances daily living.

Special Features:
• Ducted reverse cycle air conditioning
• Stone kitchen benchtops
• Glass splashback
• Window furnishings throughout
• Alarm system with ‘Touchnav’ LED code pad and 2 remotes (also connected to garage door auto opener)
• Auto garage door (one door only)
• Half-height tiling in bathrooms, ensuite, and powder rooms with showers
• Free-standing bathtub
• Solar panels

Disclaimer: Plans, drawings, and designs on this website are for marketing and illustrative purposes only. Dimensions are approximate, subject to survey and final subdivision plans (STCA). Plans are not to scale. Images, including artist impressions, may depict items not included in the sale. Purchasers should rely on their own enquiries and the Contract for Sale. Allam Homes Pty Limited may alter designs, specifications, dimensions, inclusions, and prices without notice. For full terms, visit www.allam.com.au.
Price: $1,219,000

Vacancy Rate in Chisholm NSW 2322

View full vacancy rate history in Chisholm NSW 2322 via SQM Research.


Schools near Sophia Waters Estate - Chisholm

Here are 6 schools near Sophia Waters Estate - Chisholm:

Lot 313:
Sophia Waters Estate - Chisholm