Lot 2218: Haslet @ Stockland Whiteman Edge - Brabham WA 6055
Introducing our newest (and final) collection of eight, architecturally designed homes in Whiteman Edge, Brabham. A limited edition collaboration between Stockland and INKA – a Zorzi Group Initiative.
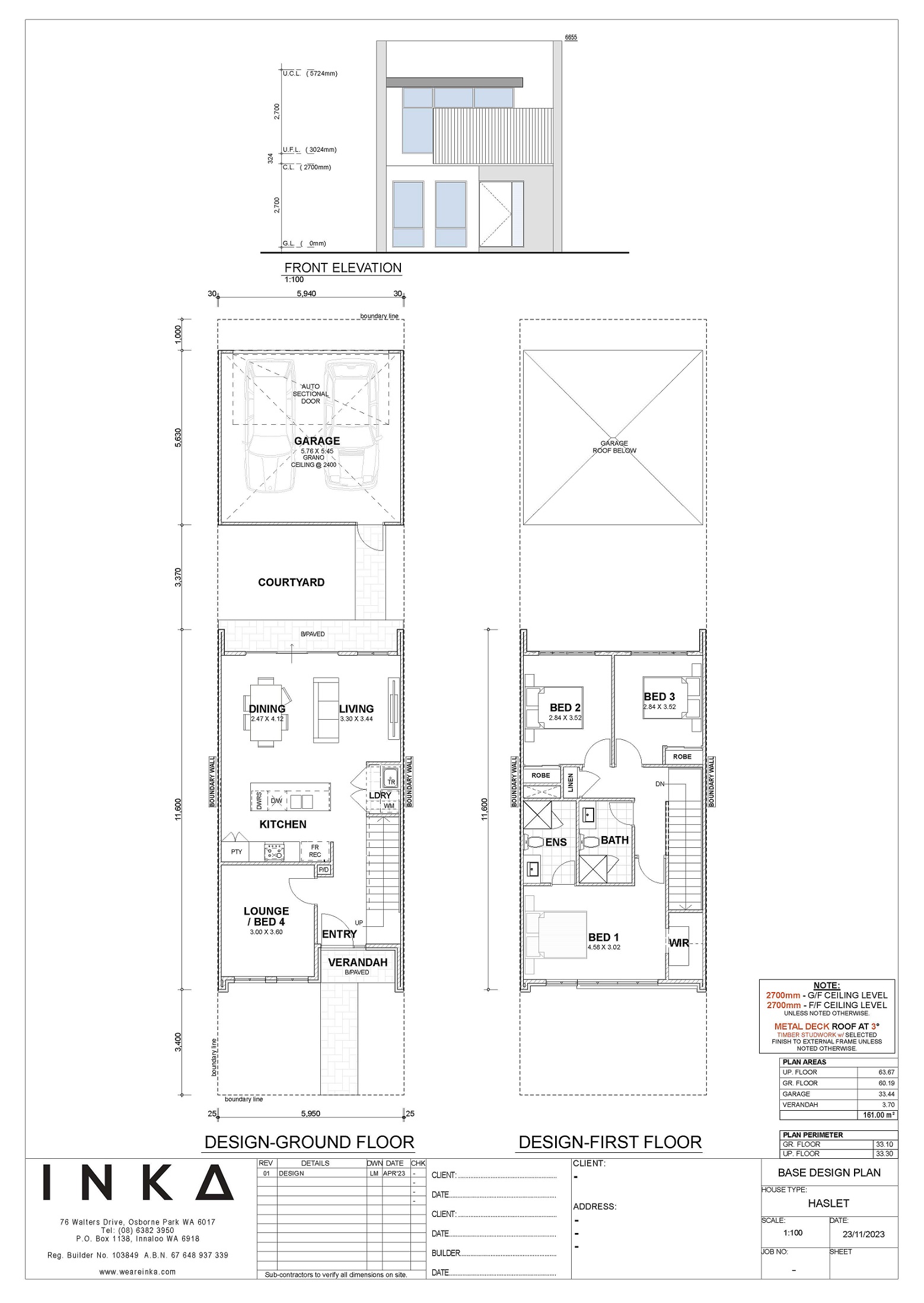
Sprawled across two levels, the homes have been created with every detail considered - down to their modern and distinct facades. Designed for living as much as for striking aesthetics, the homes will evolve with you. Which means more time for housemaking, and less time spent on housekeeping.
And as the saying goes, we've (definitely) saved the best for last. These eight homes are located in one of the very best locations within Whiteman Edge. Near the shops. Near transport. Near parks and walking trails. Near it all.
About the builder | INKA – a Zorzi Group Initiative
weareinka.com
At the intersection of legacy and innovation, INKA stand proud as an award-winning, Western Australian owned builder, in a new era of construction. They don’t just build structures; they craft future living spaces with an integrity-first approach, echoed across their building group for over half a century. Established in 2021, the INKA brand is built on genuine trust and relentless curiosity. They are driven, always ask the big questions and push boundaries, to ensure the absolute best outcomes for their clients. Welcome to where the past meets the present with a vision to evolve urban development for the future.
Featuring:
- Architecturally designed, two-storey urban loft living
- Four bedrooms (or three plus that dream home office), two bathrooms.
- Courtyard and a Double Garage
- 2700mm (31c) ceilings to Ground and Upper Floor
- Premium stone benchtops to Kitchen and Bathrooms
- 30 x LED internal downlights
- Daiken Ducted Reverse Cycle Air Conditioning
- Floor Coverings and Wall Painting throughout
4
2
2
Development Info of Stockland Whiteman Edge - Brabham
This information is estimated by the OpenLot research team. Let us know here to provide up-to-date information about this development.
| Total new homes | 2,413 |
| Area size | N/A |
| Growth Region | Perth North East Growth Areas |
| City council | City of Swan |
| Developer | Stockland |
Location & Map for Stockland Whiteman Edge - Brabham
Visit Display Homes near Stockland Whiteman Edge - Brabham
More Townhouses by Inka - A Zorzi Group Initiative (Home Builder)
Schools near Stockland Whiteman Edge - Brabham
Here are 6 schools near Stockland Whiteman Edge - Brabham:
K-6 Government Primary School
K-6 Government Primary School
K-6 Government Primary School
PP-9 Independent Combined School
PP-6 Catholic Primary School
PP-6 Independent School
Popular Estates near Stockland Whiteman Edge - Brabham
Latest New Home Articles for You
19/Aug/2025 | OpenLot.com.au
🏡 Suburb Profile: Beveridge
Beveridge is within the Mitchell Shire, located 42 kilometres north of Me...
19/Aug/2025 | OpenLot.com.au
test2
19/Aug/2025 | OpenLot.com.au
tests
13/Jun/2025 | OpenLot.com.au
Display Homes at Playford Alive Estate: A Thriving Community at the Heart of Munno Para
Welcome to Playford Alive, a vibrant and dynamic masterplanned community ...
11/Jun/2025 | OpenLot.com.au
Display Homes at Ocean Hill Estate: A Thriving Community by the Coast
A short stroll from the white sands of Madora Beach and fringed by the co...
10/Jun/2025 | OpenLot.com.au
Display Homes at Bluestone Estate: An Established Community in the Mount Barker
Whether you’re a first home buyer, a growing family, or looking to downsi...
09/Jun/2025 | OpenLot.com.au
Queensland Leads, But NSW and VIC Fall Behind, in New Housing Buyer Demand Index
New data reveals that Australia’s new housing market remains resilient de...
06/Jun/2025 | OpenLot.com.au
Display Homes at Minters Fields Estate: A Scenic Hillside Community in Mount Barker
Nestled in the heart of Mount Barker, Minters Fields offers a truly remar...
03/Jun/2025 | OpenLot.com.au
🏡 Step Inside a Frenken Home at Smiths Lane
During a recent visit to the Smiths Lane display village, OpenLot.com.au ...