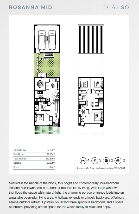
Lot 5832: Rosanna @ Westbrook Estate - Truganina VIC 3029
- Fixed Site Costs
- 2550mm ceiling height ground floor
- Modern kitchen cooktop, oven and rangehood
- Timber look laminate flooring to main living area, meals, kitchen and entry
- Carpet to bedrooms
- LED Downlights
- Landscaping to front yard
- Wall panel heaters to all bedrooms
- Split system to main living
- 20mm Stone Composite kitchen & bathroom benchtops
- Letterbox
4
2
2
Development Info of Westbrook Estate - Truganina
This information is estimated by the OpenLot research team. Let us know here to provide up-to-date information about this development.
| Total new homes | 4,000 |
| Area size | 314.00 hectares |
| Growth Region | Melbourne West Growth Corridor |
| City council | Wyndham City Council |
| Developer | Dennis Family Corporation |
| Creative agency | Helsinki Agency |
| Other names | Botania Townhomes |
| Distance to | Melbourne Airport - 21 km south-west Melbourne CBD - 23 km west |
Location & Map for Westbrook Estate - Truganina
Visit Display Homes near Westbrook Estate - Truganina
More House and Land Packages in Westbrook Estate - Truganina
Land Price Trend in Truganina VIC 3029
- In Oct - Dec 24, the median price for vacant land in Truganina VIC 3029 was $347,500. *
- From Oct - Dec 17 to Oct - Dec 24, the median price for vacant land in Truganina VIC 3029 has increased 0.72%. *
- From 2008 to 2024, the median price for vacant land in Truganina VIC 3029 has increased 150.72%. *
Vacancy Rate in Truganina VIC 3029
View full vacancy rate history in Truganina VIC 3029 via SQM Research.
Schools near Westbrook Estate - Truganina
Here are 6 schools near Westbrook Estate - Truganina:
Prep-9 Government Combined School
Prep-6 Government Primary School
7-12 Catholic Secondary School
Prep-6 Catholic Primary School
Prep-6 Government Primary School
Prep-9 Government Combined School
Popular Estates near Westbrook Estate - Truganina
Latest New Home Articles for You
19/Aug/2025 | OpenLot.com.au
🏡 Suburb Profile: Beveridge
Beveridge is within the Mitchell Shire, located 42 kilometres north of Me...
19/Aug/2025 | OpenLot.com.au
test2
19/Aug/2025 | OpenLot.com.au
tests
13/Jun/2025 | OpenLot.com.au
Display Homes at Playford Alive Estate: A Thriving Community at the Heart of Munno Para
Welcome to Playford Alive, a vibrant and dynamic masterplanned community ...
11/Jun/2025 | OpenLot.com.au
Display Homes at Ocean Hill Estate: A Thriving Community by the Coast
A short stroll from the white sands of Madora Beach and fringed by the co...
10/Jun/2025 | OpenLot.com.au
Display Homes at Bluestone Estate: An Established Community in the Mount Barker
Whether you’re a first home buyer, a growing family, or looking to downsi...
09/Jun/2025 | OpenLot.com.au
Queensland Leads, But NSW and VIC Fall Behind, in New Housing Buyer Demand Index
New data reveals that Australia’s new housing market remains resilient de...
06/Jun/2025 | OpenLot.com.au
Display Homes at Minters Fields Estate: A Scenic Hillside Community in Mount Barker
Nestled in the heart of Mount Barker, Minters Fields offers a truly remar...
03/Jun/2025 | OpenLot.com.au
🏡 Step Inside a Frenken Home at Smiths Lane
During a recent visit to the Smiths Lane display village, OpenLot.com.au ...