Lot 204: Rixton 19 @ The Outlook Estate - Mooroopna VIC 3629
Development Info of The Outlook Estate - Mooroopna
This information is estimated by the OpenLot research team. Let us know here to provide up-to-date information about this development.
| Total new homes | 86 |
| Area size | 8.26 hectares |
| City council | Greater Shepparton City Council |
| Developer | N/A |
| Project marketer | Koham Property Group |
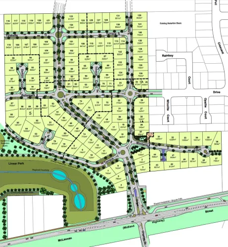
Location & Map for The Outlook Estate - Mooroopna
More House and Land Packages in The Outlook Estate - Mooroopna
More House and Land Packages by Sherridon Homes (Home Builder)
Land Price Trend in Mooroopna VIC 3629
- In Oct - Dec 24, the median price for vacant land in Mooroopna VIC 3629 was $240,000. *
- From Oct - Dec 17 to Oct - Dec 24, the median price for vacant land in Mooroopna VIC 3629 has increased 118.18%. *
- From 2008 to 2024, the median price for vacant land in Mooroopna VIC 3629 has increased 199.38%. *
Vacancy Rate in Mooroopna VIC 3629
View full vacancy rate history in Mooroopna VIC 3629 via SQM Research.
Schools near The Outlook Estate - Mooroopna
Here are 6 schools near The Outlook Estate - Mooroopna:
Prep-6 Government Primary School
Prep-6 Catholic Primary School
Prep-6 Government Primary School
Prep-6 Government Primary School
Prep-6 Government Primary School - School Head Campus
Popular Estates near The Outlook Estate - Mooroopna
Latest New Home Articles for You
19/Aug/2025 | OpenLot.com.au
🏡 Suburb Profile: Beveridge
Beveridge is within the Mitchell Shire, located 42 kilometres north of Me...
19/Aug/2025 | OpenLot.com.au
test2
19/Aug/2025 | OpenLot.com.au
tests
13/Jun/2025 | OpenLot.com.au
Display Homes at Playford Alive Estate: A Thriving Community at the Heart of Munno Para
Welcome to Playford Alive, a vibrant and dynamic masterplanned community ...
11/Jun/2025 | OpenLot.com.au
Display Homes at Ocean Hill Estate: A Thriving Community by the Coast
A short stroll from the white sands of Madora Beach and fringed by the co...
10/Jun/2025 | OpenLot.com.au
Display Homes at Bluestone Estate: An Established Community in the Mount Barker
Whether you’re a first home buyer, a growing family, or looking to downsi...
09/Jun/2025 | OpenLot.com.au
Queensland Leads, But NSW and VIC Fall Behind, in New Housing Buyer Demand Index
New data reveals that Australia’s new housing market remains resilient de...
06/Jun/2025 | OpenLot.com.au
Display Homes at Minters Fields Estate: A Scenic Hillside Community in Mount Barker
Nestled in the heart of Mount Barker, Minters Fields offers a truly remar...
03/Jun/2025 | OpenLot.com.au
🏡 Step Inside a Frenken Home at Smiths Lane
During a recent visit to the Smiths Lane display village, OpenLot.com.au ...